Sena Kit Samrong Interchange

Sena Kit Samrong Interchange

ถนนสุขุมวิท, Thepharak, Amphoe Mueang Samut Prakan, Samut Prakan Province 10270, THA. Construction of Sena Kith Samrong Interchange is scheduled for completion in Mar 2025. Comprises of 2 buildings and 8 floors.

Project Info

Sena Kith Samrong Interchange

Welcome to Sena Kith Samrong Interchange, an exceptional economy-class condominium development by SENA Development Public Company Limited. Strategically located on Sukhumvit Road in Mueang Samut Prakan, this low-rise project offers modern living with convenient access to the Samrong Interchange.

Key Features:

  • Prime Location : Positioned on Sukhumvit Road, providing easy connectivity to key destinations in Samut Prakan and beyond
  • Spacious Development : Encompassing 4-1-22.4 rai, this development features two 8-story buildings.
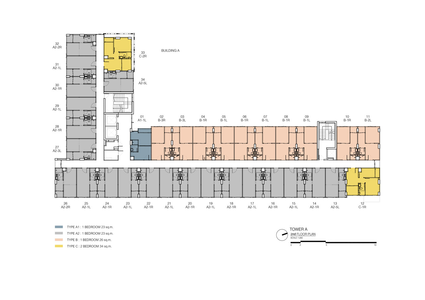
  • Ample Units : A total of 490 units, with Building A housing 238 units and Building B housing 252 units, ensuring a vibrant community.
  • Parking Facilities : Accommodates 196 cars, including tandem parking, representing 40% of total units.
  • Construction Timeline : Initiated in 2023 with an expected completion in Q1 2025.
Exterior 2

DEVELOPER:
Senadevelopment Pcl

LOCATION:
Samrong

price:
1.39 million baht*

PRICE:
1 Bedroom 23 Sq.m. : Walk-in Closet
1 Bedroom 23 Sq.m. : Private Kitchen
1 Bedroom 26 Sq.m.
1 Bedroom Plus 33.5 – 34 Sq.m.

number of unit:
490 units

project type:
condominium

Main-Entrance
Unit Types:
– 1 Bedroom : 23 sqm
– 1 Bedroom : 26-27 sqm
– 1 Bedroom Plus : 33.5-34 sqm
Amenities:
– Lobby : Welcoming entrance space.
– Co-Working Space : Ideal for professionals and students.
– Mail Box : Secure and convenient.
– Fitness Room : Equipped for all your workout needs.
– Laundry : On-site facilities for residents.
– Juristic Room : For administrative needs.
– Lifestyle Garden : A serene outdoor space for relaxation.
Additional Features:
– Parking : Approximately 196 spaces (including tandem), accounting for 40% of units.
– Security : 24/7 CCTV surveillance and key card access for peace of mind.
– Sustainability : Solar cell usage in common areas, EV charging points for cars and electric bikes.
– EV Shuttle : Convenient electric vehicle shuttle service to the nearby BTS station.
Embrace a modern, convenient lifestyle at Sena Kith Samrong Interchange, where affordability meets sophistication in the heart of Samut Prakan. Secure your unit today and enjoy the best of urban living.

Facilities

⊕ Parking
⊕ Gym
⊕ Swimming pool
⊕ Concierge
⊕ Office room
⊕ Garden
⊕ Security

Location

Sena Kit Samrong Interchange
Sukhumvit Road, Samrong Nuea Subdistrict,Mueang Samut Prakan District, Samut Prakan